Консоль КС2

Заказать через WhatsApp

+7 (747) 191-70-02

Отправьте заявку

zakaz@kvant21.kz

Описание

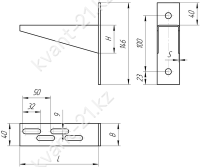
Консоль КС2 предназначена для крепления высоконагруженных кабельных конструкций (лотков, коробов) к стойкам типа СТ, стенам и другим инженерным конструкциям. Подходит для монтажа кабелей среднего и высокого напряжения, в том числе кабелей с изоляцией из сшитого полиэтилена, с помощью специальных хомутов или скоб из немагнитного материала. Консоль КС2 используется в коррозийных и агрессивных средах на предприятиях металлургической, газовой, химической и нефтехимической промышленности. Длина полки варьируется от 140 до 750 мм.

Завод «Челябинский ЗЭМИ» изготавливает консоли КС2 из качественной стали марки Ст3 толщиной до 2,5 мм, с опорной пластиной из стали марки 08ПС толщиной 4мм. При длине консоли более 450 мм, толщина пластины увеличивается. Шаг перфорации для этих типов консолей 50 мм, размер отверстий 32*9 мм. Крепление консолей к стойке осуществляется DIN болтами через отверстия в опорной пластине. Стандартное климатическое исполнение УТ1,5. Антикоррозионное покрытие получается методом погружения изделия в расплав цинка.

Технические характеристики

Заказать через WhatsApp

+7 (747) 191-70-02

Отправьте заявку

zakaz@kvant21.kz

Whatsapp icon Phone icon