Кронштейн Кр-7

Заказать через WhatsApp

+7 (747) 191-70-02

Отправьте заявку

zakaz@kvant21.kz

Описание

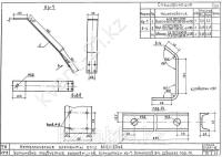
Кронштейн Кр-7 выпускается в соответствии с типовым проектом 3.407-85.

Спецификация Кронштейна Кр-7:

Позиция Наименование детали Количество Масса, кг
1 Полоса    _5х95 ГОСТ 103-57_   L=750
Ст.3 ГОСТ 535-58
1 2,80

 

****

Характеристики

Вес
2,80 кг

Заказать через WhatsApp

+7 (747) 191-70-02

Отправьте заявку

zakaz@kvant21.kz

Whatsapp icon Phone icon