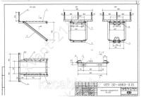
Кронштейн разъединителя КР-1

Заказать через WhatsApp

+7 (747) 191-70-02

Отправьте заявку

zakaz@kvant21.kz

Описание

Кронштейн разъединителя КР-1 выпускается в соответствии с типовым проектом ОТУ 32-4863 (ОТУ 32-4863-3.21).

Спецификация Кронштейна разъединителя КР-1:

****

Характеристики

Вес
22,64 кг

Заказать через WhatsApp

+7 (747) 191-70-02

Отправьте заявку

zakaz@kvant21.kz

Whatsapp icon Phone icon