Надставка ТС-1
Заказать через WhatsApp
Отправьте заявку
Описание
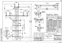
Надставка ТС-1 применяется при пересечении высоковольтной воздушнолй ЛЭП с различными инженерными сооружениями и другими линиями напряжением 6 кВ, 10 кВ. Применение надставки обеспечивает безопасность эксплуатации линии в местах пересечения путем изменения высоты опоры.
Спецификация надставки ТС-1
| Позиция | Наименование детали | Количество | Масса, кг |
|---|---|---|---|
| 1 | Уголок 80х80х6 ГОСТ8509-86 | 2 | 76,50 |
| 2 | Уголок 70х70х5 ГОСТ8509-86 | 1 | |
| 3 | Уголок 70х70х5 ГОСТ8509-86 | 1 | |
| 4 | Уголок 50х50х5 ГОСТ8509-86 | 2 | |
| 5 | Уголок 50х50х5 ГОСТ8509-86 | 4 | |
| 6 | Круг 10 ГОСТ2590-71 | 1 | |
| 7 | Круг 10 ГОСТ2590-71 | 12 | |
| 8 | Штырь Ш-20-2-К-30 ГОСТ 34-13-931-86 | 6 |
Размеры надставки ТС-1

Варианты обозначения: надставка ТС-1, TС1, TС-1
****Характеристики
Вес
86,0 кг