Надставка ТС-3
Заказать через WhatsApp
Отправьте заявку
Описание
Надставка ТС-3 выпускается в соответствии с типовым проектом 3.407.1-136 (3.407.1-136.13.01).
Надставка ТС-3 применяется с целью увеличения высоты опоры высоковольтной воздушной линии при ее пересечении с другими ЛЭП напряжением 6 кВ и 10 кВ, а также различными инженерными сооружениями значительной высоты. Надставка может использоваться с изолированными и неизолированными проводами.
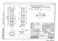
Спецификация надставки ТС-3
| Позиция | Наименование детали | Количество | Масса, кг |
|---|---|---|---|
| 1 | Уголок 50х50х4 ГОСТ8509-72 L=1400 | 4 | 27.40 |
| 2 | Уголок 50х50х4 ГОСТ8509-72 L=300 | 4 | |
| 3 | Круг 15 ГОСТ2590-71 L=295 | 8 | |
| 4 | Круг 6 ГОСТ2590-71 L=500 | 1 | |
| 5 | Болт М16*260 ГОСТ 7798-70 | 4 | |
| 6 | Гайка М16 ГОСТ 5915-70 | 16 |
Размеры надставки ТС-3

Варианты обозначения: надставка ТС-3, TС3, TС-3
****Характеристики
Вес
27,40 кг