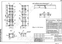
Надставка ТС-5

Заказать через WhatsApp

+7 (747) 191-70-02

Отправьте заявку

zakaz@kvant21.kz

Описание

Надставка ТС-5 выпускается в соответствии с типовым проектом 3.407.1-136 (3.407.1-136.3-31).
Надставка ТС-5 устанавливается на опору, если требуется изменение ее высоты в случае пересечения воздушных ЛЭП с различными инженерно-техничсекими сооружениями и другими линиями. Надставка может использоваться на ЛЭП нооминальным напряжением 6 кВ - 10 кВ с изолированными и неизолированными проводами.

Спецификация Надставки ТС-5:

****

Характеристики

Вес
35,30 кг

Заказать через WhatsApp

+7 (747) 191-70-02

Отправьте заявку

zakaz@kvant21.kz

Whatsapp icon Phone icon