Оголовок ОГ-6

Заказать через WhatsApp

+7 (747) 191-70-02

Отправьте заявку

zakaz@kvant21.kz

Описание

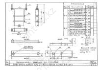
Оголовок ОГ-6 выпускается в соответствии с типовым проектом 3.407-85.

Спецификация Оголовка ОГ-6:




 

****

Характеристики

Вес
3,28 кг

Заказать через WhatsApp

+7 (747) 191-70-02

Отправьте заявку

zakaz@kvant21.kz

Whatsapp icon Phone icon