Оттяжка ОТ-3
Заказать через WhatsApp
Отправьте заявку
Описание
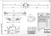
Оттяжка ОТ-3 выпускается в соответствии с типовым проектом 3.407.1-143 (3.407.1-143.8.45).
Оттяжка ОТ-3 применяется для выравнивания стоек ЛЭП из железобетона номинальным напряжением 6 кВ и 10кВ, длина которых 16,4 м (тип СВ 164-12). С помощью оттяжек выполняется компенсация сил и моментов сил, которые возникают при использовании стоек данной конструкции. По сравнению с жесткими подпорками, которые могут применяться при установке стоек ЛЭП, оттяжка ОТ-3 отличается эффективностью и экономичностью.
Спецификация Оттяжки ОТ-3:
| Позиция | Наименование детали | Количество | Масса, кг |
|---|---|---|---|
| 1 | Круг 14 ГОСТ 2590-71 L=1920 | 2 | 9,60 |
| 2 | Полоса 6х70 ГОСТ103-76 L=560 | 2 | |
| 3 | Полоса 6х50 ГОСТ103-76 | 4 | |
| 4 | Болт М16х80 ГОСТ7798-70 | 2 | |
| 5 | Гайка М16 ГОСТ5915-70 | 2 | |
| 6 | Шайба 16 ГОСТ11371-78 | 4 |
Размеры оттяжки ОТ-3

Варианты обозначения: оттяжка ОТ-3, ОТ 3, ОТ3
****Характеристики
Вес
9,60 кг