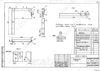
Траверса ТМ-11
Заказать через WhatsApp
Отправьте заявку
Описание
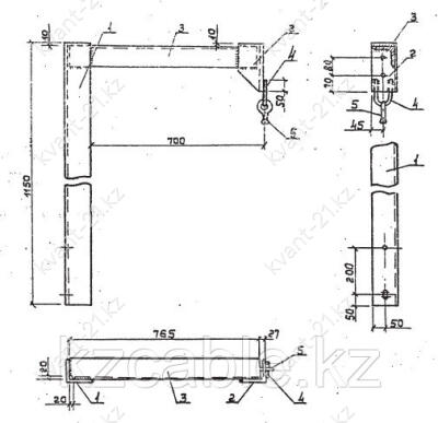
Траверсы ТМ-11 (проект 3.407.1-143.8.11) обеспечивают надежное крепление провода к стойкам типа СВ воздушных высоковольтных ЛЭП (10 кВ). Крепление выполняется с использованием хомута Х-1 к стойке типа СВ105, и хомута Х-42 к стойке типа СВ110.
Траверсы ТМ-11 выполнены из качественного материала - углеродистой стали и имеют специальное лаковое (лак БТ-577) покрытие, предохраняющее от коррозии.
Габариты изделия: 820х290х1150мм.
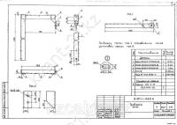
Спецификация траверсы ТМ-11
| Позиция | Наименование детали | Количество | Масса, кг |
|---|---|---|---|
| 1 | Уголок 100х100х8 ГОСТ8509-86 | 1 | 25.00 |
| 2 | Уголок 100х100х8 ГОСТ8509-86 | 1 | |
| 3 | Уголок 90х90х7 ГОСТ8509-86 | 1 | |
| 4 | Круг 16 ГОСТ2590-71 | 1 | |
| 5 | Серьга СРС 7-17 ГОСТ 2725-78 | 1 |
Размеры траверсы ТМ-11:

Варианты обозначения: траверса ТМ-11, TМ11, TМ-11
****Характеристики
Вес
23,20 кг