Траверса ТМ-3
Заказать через WhatsApp
Отправьте заявку
Описание
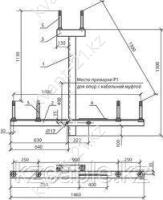
Во время установки промежуточных опор типа П10-2 ЛЭП 6 кВ - 10 кВ в населенных пунктах двойное крепление проводов без изоляции к стойкам СВ105 производится при помощи траверсы ТМ-3.
Траверса ТМ-3 изготавливается по типовому проекту 3.407.1-143.8.3 из углеродистой стали, имеет лаковое (лак БТ-577) антикоррозийное покрытие. Для присоединения изоляторов ШФ20-В, ШС10-Д, ШФ10-Г на траверсе ТМ-3 имеются штыри. Крепление штыревых изоляторов к траверсе ТМ-3 выполняется колпачками таких типов: КП-22, К-6, К-7,К-9. Крепление провода к изоляторам осуществляется либо спиральной (ПВС) вязкой либо проволочной (ВШ-1).
Для крепления траверсы ТМ-3 к стойке необходим хомут Х-1, который заказывается отдельно.
Габариты изделия: 1460х140х1495мм.
Спецификация траверсы ТМ-3
| Позиция | Наименование детали | Количество | Масса, кг |
|---|---|---|---|
| 1 | Уголок 70х70х5 ГОСТ8509-86 | 1 | 21.00 |
| 2 | Уголок 70х70х5 ГОСТ8509-86 | 1 | |
| 3 | Уголок 70х70х5 ГОСТ8509-86 | 1 | |
| 4 | Круг 10 ГОСТ2590-71 | 1 | |
| 5 | Штырь Ш-20-2-К-30 ГОСТ 34-13-931-86 | 6 |
Размеры траверсы ТМ-3:

Варианты обозначения: траверса ТМ-3, TМ3, TМ-3
****