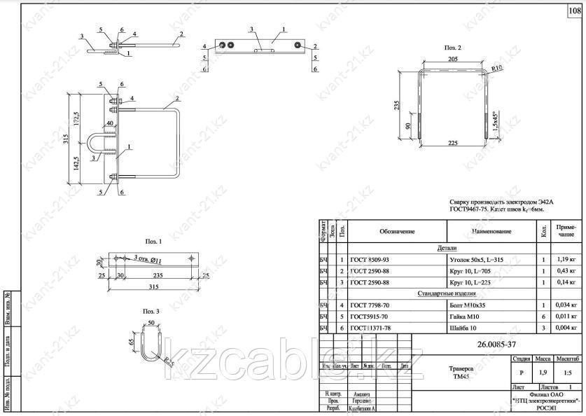
Траверса ТМ-45

Заказать через WhatsApp

+7 (747) 191-70-02

Отправьте заявку

zakaz@kvant21.kz

Описание

Траверса ТМ-45 выпускается в соответствии с типовым проектом 26.0085 (26.0085-37).

Спецификация Траверсы ТМ-45:

****

Характеристики

Вес
1,90 кг

Заказать через WhatsApp

+7 (747) 191-70-02

Отправьте заявку

zakaz@kvant21.kz

Whatsapp icon Phone icon