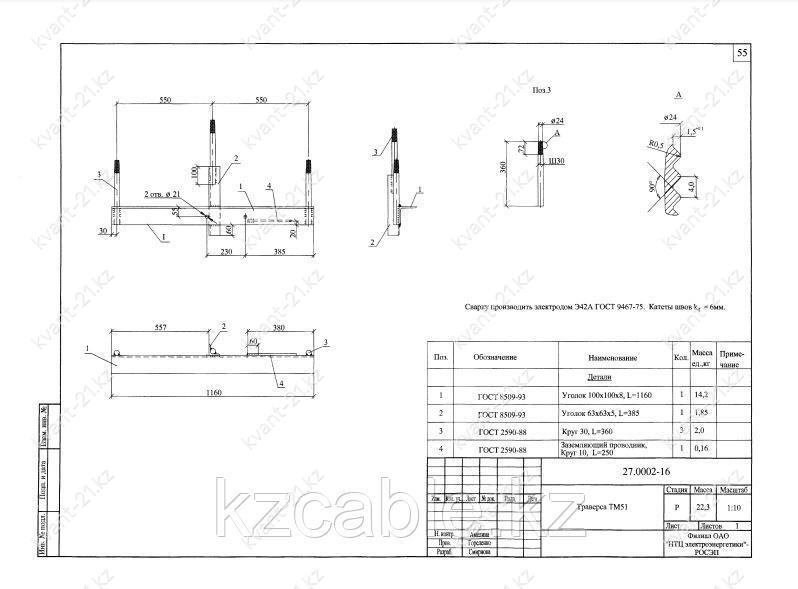
Траверса ТМ-51
Заказать через WhatsApp
Отправьте заявку
Описание
Траверса ТМ-51 выпускается в соответствии с типовым проектом 27.0002 (27.0002-16).
Траверса ТМ-51 используется при установке опор воздушных высоковольтных ЛЭП номинальным напряжением 10 кВ и предназначена для осуществления крепления прокладываемых проводов.
На траверсе имеются штыри для установки изоляторов ШФ10-Г, ШФ20-В, ШС10-Д. Изоляторы на штырях крепятся с помощью колпачков КП-22, К-6, К-7 и К-9. Провода на изоляторах закрепляются специальной проволочной вязкой ВШ-1, а также спиральной вязкой ПВС.
Качество и надежность траверсы ТМ-51 определяются свойствами углеродистой стали, из которой изготовлена траверса. В качестве метода защиты от коррозии применяется покрытие траверсы битумным лаком БТ-577.
Для крепления траверсы на стойке используются хомуты типов Х-1 (при установке траверсы на стойке СВ105), Х-42 (при установке на стойке СВ110). Необходимые для выбранного типа стоек хомуты поставляются отдельным заказом.
Спецификация траверсы ТМ-51
| Позиция | Наименование детали | Количество | Масса, кг |
|---|---|---|---|
| 1 | Уголок 100х100х8 ГОСТ 8509-93 L=1160 | 1 | 22.30 |
| 2 | Уголок 63х63х5 ГОСТ 8509-93 L=385 | 1 | |
| 3 | Круг 30 ГОСТ 2590-88 L=360 | 3 | |
| 4 | Заземляющий проводник, Круг 10 ГОСТ 2590-88 L=250 | 1 |
Размеры траверсы ТМ-51:

Варианты обозначения: траверса ТМ-51, TМ51, TМ-51
****