Траверса ТМ-52
Заказать через WhatsApp
Отправьте заявку
Описание
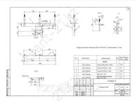
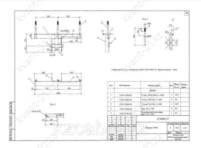
Траверса ТМ-52 выпускается в соответствии с типовым проектом 27.0002 (27.0002-17).
Траверса ТМ-52 необходима для крепления провода на опорах при монтаже высоковольтных вохдушных ЛЭП напряжением 10 кВ.
Для каждого из типов стоек, на которые устанавливается траверса, существуют соответствующие крепежные хомуты. Хомут Х-1 используется для крепления траверсы к стойке СВ105, а хомут Х-42 - к стойке СВ110. Хомут заказывается отдельно от траверсы.
При изготовлении траверсы ТМ-52 применяется углеродистая сталь, имеющая хорошие механичсекие свойства. Необходимое для длительной эксплуатации защитное антикоррозионное покрытие реализуется путем нанесения битумного лака типа ВТ-577.
Спецификация траверсы ТМ-52
| Позиция | Наименование детали | Количество | Масса, кг |
|---|---|---|---|
| 1 | Уголок 100х100х8 ГОСТ 8509-93 L=1060 | 1 | 33,40 |
| 2 | Уголок 75х75х8 ГОСТ 8509-93 L=400 | 2 | |
| 3 | Уголок 75х75х8 ГОСТ 8509-93 L=290 | 1 | |
| 4 | Круг 38 ГОСТ 2590-88 L=380 | 3 | |
| 5 | Заземляющий проводник, Круг 10 ГОСТ 2590-88 L=360 | 1 |
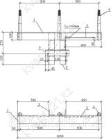
Размеры траверсы ТМ-52:

Варианты обозначения: траверса ТМ-52, TМ52, TМ-52
****