Траверса ТМ-64
Заказать через WhatsApp
Отправьте заявку
Описание
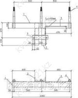
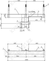
Траверса ТМ-64 выпускается в соответствии с типовым проектом 27.0002 (27.0002-29).
Траверсы ТМ-64 изготовливаются из высококачественной углеродистой стали и имеют стойкое лаковое покрытие (лак БТ-577), обеспечивающее изделию защиту от коррозии. Применяются траверсы ТМ-64 в период проведения проводов и установки высоковольтных анкерных опор 10 кВ.
Крепление траверсы ТМ-64 выполняется с использованием специальных крепежных хомутов. Для каждого типа стойки применяется определенный вид хомута. На стойки типа СВ105 крепление выполняется хомутом марки Х-1, а на стойки типа СВ110 - хомутом марки Х-42. Заказ и поставка хомутов осуществляется в отдельном порядке.
Спецификация траверсы ТМ-64
| Позиция | Наименование детали | Количество | Масса, кг |
|---|---|---|---|
| 1 | Уголок 100х100х8 ГОСТ 8509-93 L=1060 | 1 | 30.00 |
| 2 | Уголок 75х75х8 ГОСТ 8509-93 L=400 | 2 | |
| 3 | Уголок 75х75х8 ГОСТ 8509-93 L=270 | 1 | |
| 4 | Круг 38 ГОСТ 2590-88 L=380 | 3 | |
| 5 | Заземляющий проводник, Круг 10 ГОСТ 2590-88 L=360 | 1 |
Размеры траверсы ТМ-64:

Варианты обозначения: траверса ТМ-64, TМ64, TМ-64
****