Траверса ТМ-83а, ТМ-83аМ
Заказать через WhatsApp
Отправьте заявку
Описание
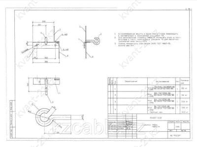
Траверсы ТМ-83а, ТМ-83аМ выпускаются в соответствии с типовым проектом 20.0027 (20.0027 01.02).
Траверсы ТМ-83а, ТМ-83аМ применяются при строительстве и монтаже опор высоковольтных воздушных линий в качестве элементов крепления. Установка траверс производится на опоры различного сечения с помощью крепежных хомутов марок Х-1 и Х-42. Крепежные хомуты необходимо заказывать отдельно.
Траверсы ТМ-83а, ТМ-83аМ изготавливаются согласно действующей нормативно-технической документации и соответствуют всем правилам. Траверсы ТМ-83а - выполнены из углеродистой стали и имеют лаковое антикоррозийное покрытие (лак БТ-577). Траверсы ТМ-83аМ - выполнены из стали особого типа и могут применяться в условиях с температурными показателями превышающими -40°С.
Траверсы ТМ перевозятся без использования особой упаковки или тары.
Спецификация траверсы ТМ-83а, ТМ-83аМ
| Позиция | Наименование детали | Количество | Масса, кг |
|---|---|---|---|
| 1 | Уголок 70х70х6 ГОСТ 8509-86 L=300 | 1 | 2.85 |
| 2 | Круг В20 ГОСТ 2590-88 L=260 | 1 | |
| 3 | Круг В10 ГОСТ 2590-88 L=250 | 1 | |
| 4 | Круг В6 ГОСТ 2590-88 L=250 | 1 |
Размеры траверсы ТМ-83а, ТМ-83аМ:

1. Сварку выполнять электродом Э42A по ГОСТ 9467-75, высота шва 5 мм.
2. Антикорозийную защиту и выбор марки стали производить в соответствии с техническим заданием.
3. Для изготовления траверсы ТМ-83aМ применять сталь в соответствии с таблицей, технического задания, для расчетных температур ниже 40 градусов.
Варианты обозначения: траверса ТМ-83а, ТМ-83аМ, ТМ83а, ТМ83аМ
****