Траверса ТМ-83в, ТМ-83вМ
Заказать через WhatsApp
Отправьте заявку
Описание
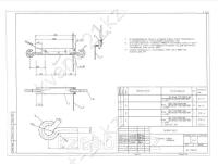
Траверсы ТМ-83в, ТМ-83вМ выпускаются в соответствии с типовым проектом 20.0027 (20.0027 05.01).
Траверсы ТМ-83в, ТМ-83вМ применяются во время прокладки кабеля и установки опор воздушной ЛЭП 10 кВ в качестве элементов крепления провода.
Установка данных траверс производится на стойки различного сечения с применение особых крепежных хомутов. К стойкам серии СВ105 траверсы крепятся хомутом Х-1, а к стойкам серии СВ110 - хомутом Х-42. Крепежные хомуты в комплект к траверсам не входят, поэтому заказывать их нужно отдельно.
Траверсы ТМ-83вМ могут применяться при температуре окружающей среды ниже -40°С, так как выполнены из особого вида стали. Материалом для изготовления траверсы ТМ-83в служит углеродистая сталь. Антикоррозийная защита траверс обеспечивается петем нанесения на их поверхность битумного лака БТ-577.
Поставка траверсы ТМ-83в и ТМ-83вМ осуществляется без использования особой упаковки или тары.
Спецификация траверсы ТМ-83в, ТМ-83вМ
| Позиция | Наименование детали | Количество | Масса, кг |
|---|---|---|---|
| 1 | Уголок 70х70х6 ГОСТ 8509-86 L=410 | 1 | 4.14 |
| 2 | Круг В20 ГОСТ 2590-88 L=260 | 2 | |
| 3 | Круг В10 ГОСТ 2590-88 L=250 | 1 | |
| 4 | Круг В6 ГОСТ 2590-88 L=250 | 1 |
Размеры траверсы ТМ-83в, ТМ-83вМ:

1. Сварку выполнять электродом Э42A по ГОСТ 9467-75, высота шва 5 мм.
2. Антикорозийную защиту и выбор марки стали производить в соответствии с техническим заданием.
3. Для изготовления траверсы ТМ-83вМ применять сталь в соответствии с таблицей, технического задания, для расчетных температур ниже 40 градусов.
Варианты обозначения: траверса ТМ-83в, ТМ-83вМ, ТМ83в, ТМ83вМ
****