Траверса ТМ-9
Заказать через WhatsApp
Отправьте заявку
Описание
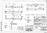
Траверсы ТМ-9 (проект 3.407.1-143.8.9) используются для крепления провода к стойке СВ при установлении промежуточных опор (тип П10-1) ЛЭП 10 кВ. Изготавливают траверсы из высококачественного материала (углеродистая сталь) и покрывают лаком БТ-577 (для придания антикоррозийных свойств).
На расположенные на траверсе ТМ-9 штыри крепятся изоляторы штыревого типа (ШФ10-Г, а так же ШФ20-В и ШС10-Д). Крепление это выполняется с помощью колпачков КП-22 или колпачков К-6, К-7, а так же К-9. Вязки проволочная ВШ-1 или спиральная ПВС применяются для присоединения провода к изолятору. Хомут Х-42, поставляемый отдельно, используется при креплении траверсы ТМ-9 к стойке типа СВ110.
Габариты изделия: 1460x110x355мм.
Спецификация траверсы ТМ-9
| Позиция | Наименование детали | Количество | Масса, кг |
|---|---|---|---|
| 1 | Уголок 70х70х5 ГОСТ8509-86 | 1 | 10.40 |
| 2 | Уголок 50х50х5 ГОСТ8509-86 | 1 | |
| 3 | Круг 22 ГОСТ2590-71 | 2 | |
| 4 | Штырь Ш-20-2-К-30 ГОСТ 34-13-931-86 | 2 |
Размеры траверсы ТМ-9:

Варианты обозначения: траверса ТМ-9, TМ9, TМ-9
****