Траверса ТН-10
Заказать через WhatsApp
Отправьте заявку
Описание
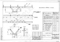
Траверсы ТН-10 выпускаются в соответствии с типовым проектом 3.407.1-143 выпуск 1 (лист 3.407.1-143.8-52)
Траверса ТН-10 применяется при одинарном креплении проводов на опорах, устанавливаемых при прокладке низковольных воздушных линий напряжением 0,4 кВ. Штыри, приваренные к траверсе, предназначены для установки изоляторов и крепления их колпачками. Для крепления траверсы ТН-10 на опоре применяются хомуты, подбираемые индивидуально под каждый тип опоры. Так, хомут Х-10 используется для установки траверсы на опору СВ95, а хомут Х-42 - на опору СВ105. На поставку хомута выполняется отдельный заказ.
Спецификация траверсы ТН-10
| Позиция | Наименование детали | Количество | Масса, кг |
|---|---|---|---|
| 1 | Уголок 70х70х5 ГОСТ8509-86 L=430 | 1 | 16.00 |
| 2 | Полоса 5х50 ГОСТ 103-76 | 2 | |
| 3 | Полоса 5х50 ГОСТ 103-76 | 1 | |
| 4 | Штырь Ш-16-К-25 ГОСТ 34-13-931-86 | 5 | |
| 5 | Болт М16х30 ГОСТ 7798-70 | 2 | |
| 6 | Гайка М16 ГОСТ5915-70 | 2 |
Размеры траверсы ТН-10:

Варианты обозначения: траверса ТН-10, TH10, TH-10
****Характеристики
Вес
16,0 кг